Italiano
270.000 €

QUADRILOCALE con taverna e box doppio

4 o più locali in vendita • Trezzano Rosa - via giovanni pascoli
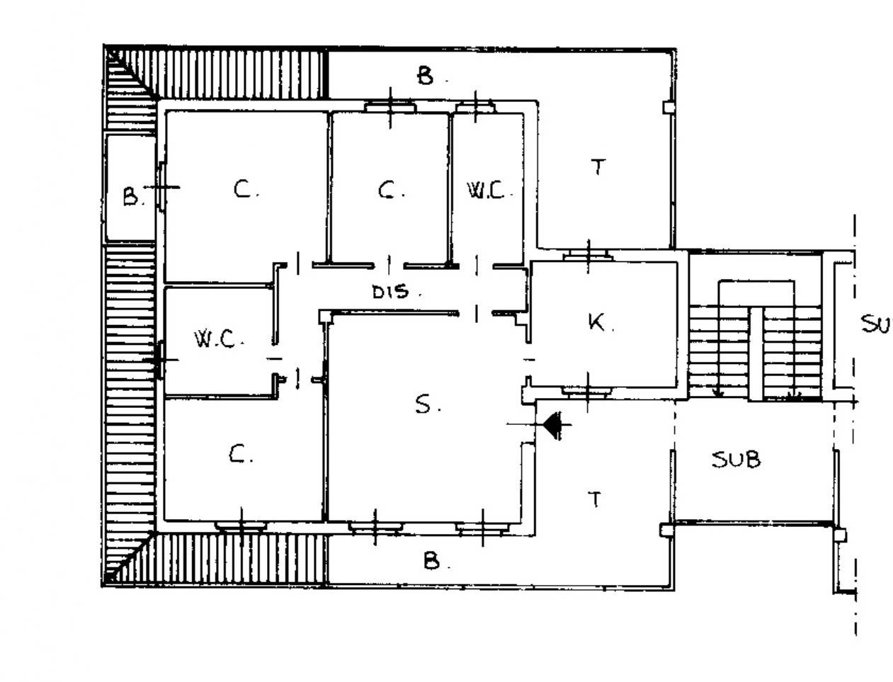
In palazzina di 4 appartamenti, proponiamo al 1 ed ultimo piano, appartamento composto da ingresso, soggiorno con soppalco, cucina abitabile con accesso al terrazzino, 3 camere da letto, doppio servizio e altri due balconi.
Completano la proprietà un'ampia taverna e box doppio compreso nel prezzo.

Libero subito.

Giovani, dinamici e con tanta voglia di fare, ecco chi troverai aprendo la porta di IMMOBILIARE DUEA.
Laura, la segretaria, è sempre pronta ad ascoltare i tuoi bisogni.
Andrea, il titolare, a trovare le casa dei tuoi sogni.
Grazie alla nostra associazione di categoria F.I.A.I.P. siamo sempre aggiornati circa le nuove normative ed è anche per questo che dal 2019 utilizziamo il nuovo formulario UNA FIAIP per la modulistica di proposte di acquisto / locazioni, incarico e altri, per tutelare al meglio i nostri clienti.

La costante presenza sul mercato ha fatto sì di instaurare diverse collaborazioni con notai, consulenti bancari, architetti, geometri, imprese edili per poter affrontare ogni passo con le giuste competenze.

Chiedi a chi ha già usufruito del nostro servizio!
Caratteristiche principali
Codice
A1389
Città
Trezzano Rosa
Categoria
4 o più locali
Prezzo
270.000 €
Locali
4
Bagni
2
Mq
140
Box
1
Balconi
1
Terrazzi
1
mq Terrazzo
20
Piano
1
Classe energetica
C
61,17
Stato Immobile
Buono
Grado
Medio
Panorama
Vista Aperta
Giardino
No
Arredi
Non Arredato
Tipo Soggiorno
Soggiorno
Tipo Cucina
Abitabile
Riscaldamento
Autonomo
Tipo Riscaldam.
Caldaia
Tipo Impianto
Radiatori
Fonte Energetica
Metano
Raffrescamento
No
Infissi
Legno Doppio Vetro
Serramenti
Buono
Persiana
Persiana Legno
Pavim. Giorno
Parquet
Pavim. Notte
Parquet
Pavim. Cucina
Ceramica
Pavim. Bagno
Ceramica
Accesso Disabili
No
Accesso interno disabili
Non accessibile

Accessori: Cancello Elettrico, Doppi Vetri, Porta Blindata, Ripostiglio

Mappa
via giovanni pascoli , Trezzano Rosa (MI)
Condividi su
Cookie preference