Italiano
428.000 €

Villa laterale n.4

Villa in vendita • Vaprio d'Adda - via manzoni
Vaprio d'Adda, nuova realizzazione di 4 ville, sviluppate su 2 livelli, con giardini privati e terrazzi.

ACCESSORI:
-Impianto fotovoltaico 3kwh; possibilità di installare batterie di accumulo (non comprese nel prezzo);
-Serramenti in PVC; possibilità di installare le veneziane all'interno del serramento (non comprese nel prezzo);
-Predisposizione domotica;
-Predisposizione impianto di allarme;
-Impianto di ventilazione meccanica;
-Raffrescamento tramite unità interne distribuite da controsoffitto, diffusione aria tramite bocchette.

VILLA LATERALE 4
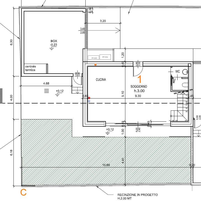
In contesto residenziale tranquillo e riservato, proponiamo in vendita villa a schiera di testa, disposta su due livelli e dotata di ampi spazi interni ed esterni, ideali per garantire il massimo comfort abitativo.

Al piano terra l’immobile si apre su una luminosa zona giorno open space, composta da soggiorno e cucina in un unico ambiente accogliente e funzionale. Sullo stesso livello sono presenti un bagno di servizio, un giardino privato che circonda la proprietà su due lati e un box auto doppio.

Il primo piano ospita la zona notte, composta da due camere da letto, un secondo bagno finestrato e un terrazzo vivibile, ideale per momenti di relax all’aperto.

Giovani, dinamici e con tanta voglia di fare, ecco chi troverai aprendo la porta di IMMOBILIARE DUEA.
Laura, la segretaria, è sempre pronta ad ascoltare i tuoi bisogni.
Andrea, il titolare, a trovare le casa dei tuoi sogni.
Grazie alla nostra associazione di categoria F.I.A.I.P. siamo sempre aggiornati circa le nuove normative ed è anche per questo che dal 2019 utilizziamo il nuovo formulario UNA FIAIP per la modulistica di proposte di acquisto / locazioni, incarico e altri, per tutelare al meglio i nostri clienti.

La costante presenza sul mercato ha fatto sì di instaurare diverse collaborazioni con notai, consulenti bancari, architetti, geometri, imprese edili per poter affrontare ogni passo con le giuste competenze.

Chiedi a chi ha già usufruito del nostro servizio!
Caratteristiche principali
Codice
A1438.4
Città
Vaprio d'Adda
Categoria
Villa
Prezzo
428.000 €
Locali
3
Camere
2
Bagni
2
Mq
124
Box
2
Mq Box
37
Mq Giardino
138
Terrazzi
1
mq Terrazzo
50
Piano
Terra
Classe energetica
A4
Stato Immobile
In Costruzione
Grado
Signorile
Posizione
Campagna
Panorama
Vista Aperta
Lati Liberi
3
Giardino
Privato
Arredi
Non Arredato
Tipo Soggiorno
Soggiorno
Tipo Cucina
A Vista
Riscaldamento
Autonomo
Tipo Riscaldam.
Pompa di Calore
Tipo Impianto
Pavimento
Fonte Energetica
Elettrico
Acqua Calda
Autonoma
Raffrescamento
Split
Infissi
PVC Triplo Vetro
Serramenti
Nuovo
Pavim. Giorno
Gres Porcellanato
Pavim. Notte
Gres Porcellanato
Pavim. Cucina
Gres Porcellanato
Pavim. Bagno
Gres Porcellanato
Accesso Disabili
Nessuna Barriera
Accesso interno disabili
Parziale
Isolamento
Presente
Isolamento termico
Cappotto esterno
Isolamento acustico
Isolamento completo
Spessore cappotto (cm)
12

Accessori: Antifurto, Aria Condizionata, Cancello Elettrico, Impianto Fotovoltaico, Lavanderia, Porta Blindata, Tripli Vetri, Video Citofono

Mappa
via manzoni , Vaprio d'Adda (MI)
Condividi su
Cookie preference