Italiano
488.000 €

NUOVA villa di testa. lavori iniziati!

Villa in vendita • Vaprio d'Adda - via manzoni
Nuova costruzione a Vaprio d'Adda in via Manzoni,
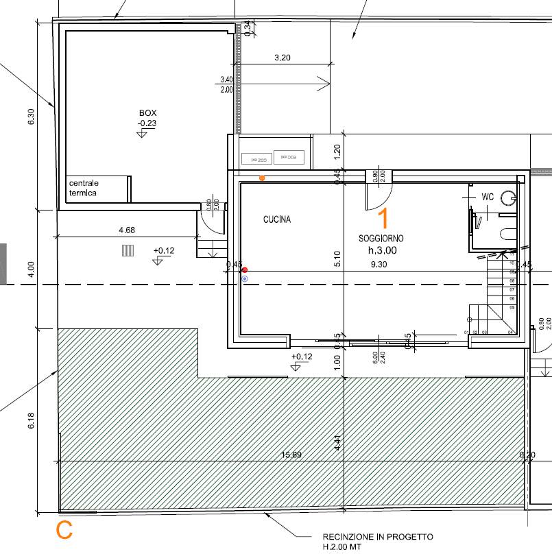
proponiamo villa libera su tre lati, composta al piano terra da ingresso, ambiente unico di cucina e soggiorno, primo bagno e accesso al giardino privato.
Al piano superiore, 3 ampie camera da letto con balcone e terrazzo di circa 50 mq.
Compreso nel prezzo box doppio e possibilità di ulteriore parcheggio privato all'interno della proprietà.
Personalizzabile.

ACCESSORI:
-Impianto fotovoltaico 3kwh; possibilità di installare batterie di accumulo (non comprese nel prezzo);
-Serramenti in PVC; possibilità di installare le veneziane all'interno del serramento (non comprese nel prezzo);
-Predisposizione domotica;
-Predisposizione impianto di allarme;
-Impianto di ventilazione meccanica;
-Raffrescamento tramite unità interne distribuite da controsoffitto, diffusione aria tramite bocchette.

i mq segnati nell'annuncio sono indicativi.


Giovani, dinamici e con tanta voglia di fare, ecco chi troverai aprendo la porta di IMMOBILIARE DUEA.
Laura, la segretaria, è sempre pronta ad ascoltare i tuoi bisogni.
Andrea, il titolare, a trovare le casa dei tuoi sogni.
Grazie alla nostra associazione di categoria F.I.A.I.P. siamo sempre aggiornati circa le nuove normative ed è anche per questo che dal 2019 utilizziamo il nuovo formulario UNA FIAIP per la modulistica di proposte di acquisto / locazioni, incarico e altri, per tutelare al meglio i nostri clienti.

La costante presenza sul mercato ha fatto sì di instaurare diverse collaborazioni con notai, consulenti bancari, architetti, geometri, imprese edili per poter affrontare ogni passo con le giuste competenze.

Chiedi a chi ha già usufruito del nostro servizio!
Caratteristiche principali
Codice
A1438.4_copia
Città
Vaprio d'Adda
Categoria
Villa
Prezzo
488.000 €
Locali
4
Camere
3
Bagni
2
Mq
144
Box
2
Mq Box
37
Mq Giardino
196
Balconi
1
Terrazzi
1
mq Terrazzo
50
Piano
Terra
Classe energetica
A2
3,51
Stato Immobile
In Costruzione
Grado
Signorile
Panorama
Vista Aperta
Lati Liberi
3
Giardino
Privato
Arredi
Non Arredato
Tipo Soggiorno
Soggiorno
Tipo Cucina
A Vista
Riscaldamento
Autonomo
Tipo Riscaldam.
Pompa di Calore
Tipo Impianto
Pavimento
Fonte Energetica
Elettrico
Acqua Calda
Autonoma
Raffrescamento
Split
Infissi
PVC Triplo Vetro
Serramenti
Nuovo
Pavim. Giorno
Gres Porcellanato
Pavim. Notte
Gres Porcellanato
Pavim. Cucina
Gres Porcellanato
Pavim. Bagno
Gres Porcellanato
Accesso Disabili
Nessuna Barriera
Accesso interno disabili
Parziale
Isolamento
Presente
Isolamento termico
Cappotto esterno
Isolamento acustico
Isolamento completo
Spessore cappotto (cm)
12

Accessori: Antifurto, Aria Condizionata, Cancello Elettrico, Impianto Fotovoltaico, Lavanderia, Porta Blindata, Tripli Vetri, Video Citofono

Mappa
via manzoni , Vaprio d'Adda (MI)
Condividi su
Cookie preference