Italiano
90.000 €

2 locali, completamente ristrutturato. libero subito.

2 locali in vendita • Capriate San Gervasio
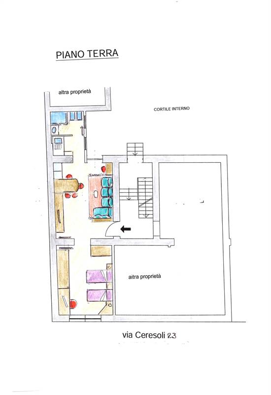
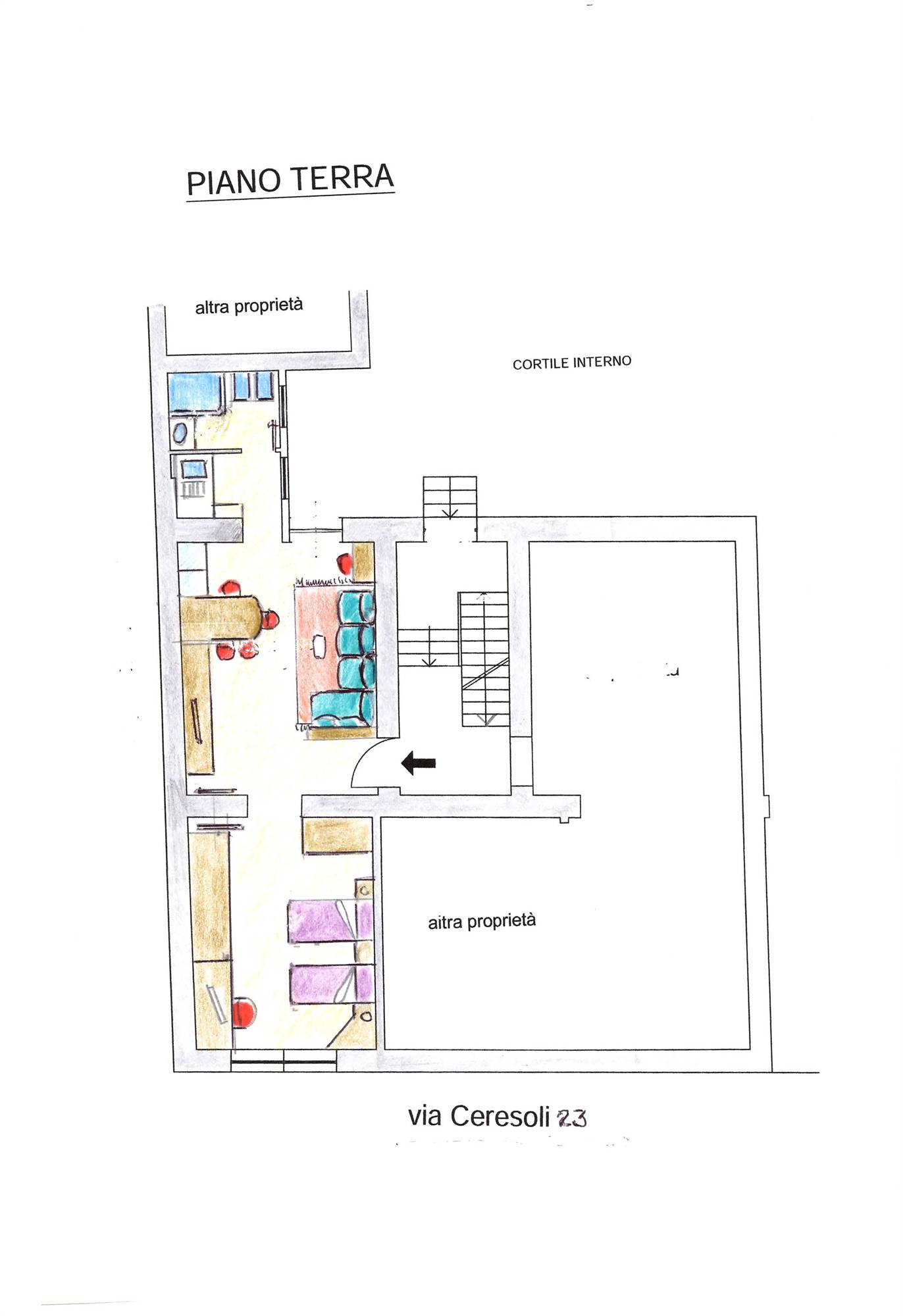
In complesso vicino al centro paese e in fase di ristrutturazione totale, proponiamo appartamento al piano terra, composto da un soggiorno con cucina a vista, camera da letto, servizio e balcone.
Possibilità di associare una cantina.
Libera subito.

Giovani, dinamici e con tanta voglia di fare, ecco chi troverai aprendo la porta di IMMOBILIARE DUEA.
Laura, la segretaria, è sempre pronta ad ascoltare i tuoi bisogni.
Andrea, il titolare, a trovare le casa dei tuoi sogni.
Grazie alla nostra associazione di categoria F.I.A.I.P. siamo sempre aggiornati circa le nuove normative ed è anche per questo che dal 2019 utilizziamo il nuovo formulario UNA FIAIP per la modulistica di proposte di acquisto / locazioni, incarico e altri, per tutelare al meglio i nostri clienti.

La costante presenza sul mercato ha fatto sì di instaurare diverse collaborazioni con notai, consulenti bancari, architetti, geometri, imprese edili per poter affrontare ogni passo con le giuste competenze.

Chiedi a chi ha già usufruito del nostro servizio!
Caratteristiche principali
Codice
A1445_tdx 2
Città
Capriate San Gervasio
Categoria
2 locali
Prezzo
90.000 €
Locali
2
Camere
1
Bagni
1
Mq
65
Piano
Terra
Classe energetica
C
183,5
Stato Immobile
Ristrutturato
Grado
Medio
Posizione
Centro
Lati Liberi
2
Giardino
No
Arredi
Non Arredato
Tipo Soggiorno
Soggiorno
Tipo Cucina
A Vista
Riscaldamento
Autonomo
Tipo Riscaldam.
Caldaia a Condensazione
Tipo Impianto
Radiatori
Fonte Energetica
Metano
Acqua Calda
Autonoma
Infissi
PVC Doppio Vetro
Serramenti
Nuovo
Persiana
Tapparella PVC
Pavim. Giorno
Ceramica
Pavim. Notte
Ceramica
Pavim. Cucina
Ceramica
Pavim. Bagno
Ceramica
Destinato a residenti
Si

Accessori: Doppi Vetri

Video
Condividi su
Cookie preference